Réservez votre séjour 2026

Réservation en ligne possible à partir de décembre 2025.

Chalets

Nos chalets bois en pleine nature

Nous proposons de nombreux chalets bois à la location dont la capacité et les équipements sauront satisfaire toutes les familles.

Leur disposition préserve l'indépendance et la tranquillité de chacun et leur assure une parfaite intégration dans l'environnement naturel.

Votre espace extérieur vous permet de prendre vos repas sur la terrasse.

Nous mettons à votre disposition une table, des chaises de jardin et un parasol, ainsi que des chaises longues pour la détente.
Des coins grillades aménagés et sécurisés sont disposés tout autour des chalets.

Tous les chalets sont équipés de couvertures polaires et d'oreillers.

Les cuisines sont équipées de four micro onde, cafetière électrique, grille pain, bouilloire et vaisselle.

Nos chalets ne sont pas équipés de TV

Nouveau : Location de climatiseurs mobiles (20€/jour ou 100€ pour la semaine complète)


Chalet 2/4 personnes

Espace intérieur 19m² + Terrasse couverte 5.5m² + Terrasse non couverte 10m²

  • Coin cuisine : évier, feux gaz, petit réfrigérateur
  • Salle de bain avec douche + WC
  • Chambre 1 lit double 140x190
  • Coin couchage 2 lits superposés 70x190 qu'on peut isoler du coin cuisine par une cloison



Chalet 4 personnes premium

Espace intérieur 21 m2 + Terrasse couverte 10 m2 et Terrasse non couverte de 10 à 15 m2

  • Coin cuisine : évier, feux gaz, table et chaises, grand frigo
  • Salle de bain avec douche, WC, lavabo
  • Chambre 1 lit double 140x190, placard de rangement
  • Chambre 2 lits superposés 80x190, placard de rangement


Chalet 4 personnes - version confort

  • Coin cuisine : évier, feux gaz, grand réfrigérateur
  • Salle de bain avec douche
  • WC indépendant
  • 1 chambre lit double 140x190
  • 1 chambre lits jumeaux 80x190


Version comfort 1

Espace intérieur 27m² + Terrasse 15m²





Version confort 2

Espace intérieur 24m² + Terrasse 20m²

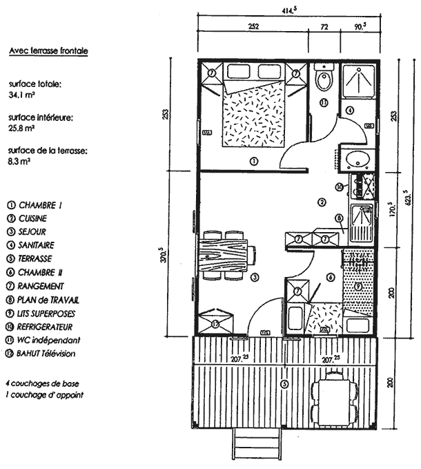
Grand Chalet 4 personnes

Espace intérieur 26m² + Terrasse couverte 8m² + Terrasse non couverte 20m²

  • Coin cuisine : évier, feux gaz, petit réfrigérateur
  • Salle de bain avec douche
  • Wc indépendant
  • Chambre lit double 140x190
  • Chambre 2 lits simples 70x190


Chalet 5 personnes

Espace intérieur 21m² + Terrasse couverte 10m²

  • Coin cuisine : évier, feux gaz, petit réfrigérateur
  • Salle de bain avec douche + WC
  • Chambre 1 lit double 140x190
  • Coin couchage 1 lit double 130x190 + 1 lit en hauteur 70x190 avec cloison amovible pour isoler


Ouverture du camping du 6 juin au 21 septembre 2026

Horaires d'ouverture de l’accueil :
Juillet / août : 9h - 13h et 14h - 20h
Juin / sept. : 9h30 - 12h30 et 15h - 18h30

N'attendez plus ! Réservez en ligne